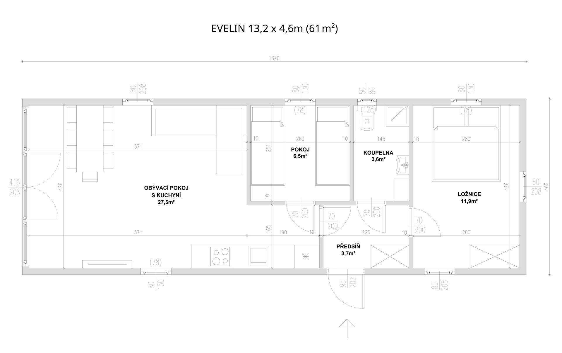
Domy typu EVELIN nabízíme v několika provedeních s podlahovou plochou od 35 do 66 m². EVELIN 4 DUO je vlastně dvojchatkou a v oblibě ho mají zejména zákazníci z řad kempů.
Díky vysoké sedlové střeše lze do domu volitelně přidat vnitřní mezipatro dostupné po žebříku. Získáte tak další úložné prostory nebo místo pro přespání hostů.
EVELIN má výrazné boční prosklení, které interiéru dodává dostatek přirozeného světla a pocit vzdušnosti.
Všechny naše domy mají v základu kvalitní zateplení a instalovaný systém vytápění, takže jsou vhodné k celoročnímu bydlení. Pro splnění přísných norem a kolaudaci k trvalému rodinnému bydlení je potřeba balíček dodatečné izolace. K dispozici je také zjednodušená letní verze domu.
Při objednání si můžete zvolit z několika standardů a dům doplnit o širokou nabídku volitelných úprav a příslušenství. Pro více informací a cenovou nabídku nás neváhejte kontaktovat.









